Sold

53-55 Water Street, Unit 201Exeter, NH 03833Sale Price: $1,030,000

  • Sale Price: $1,030,000
  • 349 Days Since Sale
$
$
%
$/month over payments
Federal 30-year interest rate: 6.22% last updated on Nov 6, 2025
* All Figures are estimates. Check with your bank or proposed mortgage company for actual interest rates.
This product uses the FRED® API but is not endorsed or certified by the Federal Reserve Bank of St. Louis.
  • $1,030,000Sale Price
  • 11/25/2024Sale Date
  • 2Bedrooms
  • 2Bathrooms
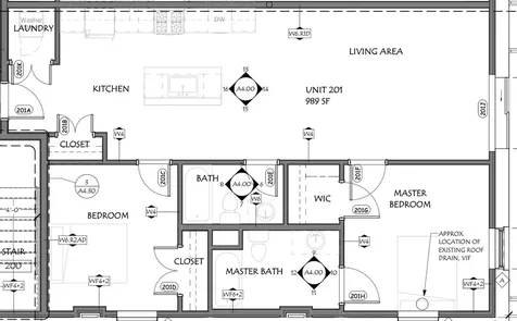
  • 1,008Square Feet
The IOKA condominiums, where the charm of colonial New England blends with modern day living.Prominent in the heart of downtown Exeter this iconic movie theater has been transformed to accommodate stunning private residences. Nestled abreast the scenic confluence of the Exeter and Squamscott Rivers the unique setting is postcard picturesque. Elevator serviced, this 2-bdrm, 2-bath condo features open concept designs with a private balcony engage the sights and sounds of the river. The secluded rooftop deck (residential use only) provides panoramic views of the river basin and surrounding area. Walk out the front door of the IOKA to a flourishing scene of art galleries, bookstores, boutique shops, breweries, yoga studios, seasonal farmers market, festivities, and many other choices. Recognized as a “foodie town” the burgeoning restaurant scene in Exeter is all around you. Residents and guests parking in the municipal parking lot immediately adjacent the IOKA with on-street parking throughout town. Easy access to Rt 101/95, a 20-minute drive to the ocean, and about an hour or so drive to the cities of Boston, MA, or Portland, ME. AmtrakCommuter Rail provides regular service on the “Downeaster” train.National and international flight paths are available nearby. This property is offered with significant tax savings of approximately $163,000.00. Inquire for details.
Listed by Florence Ruffner of Ruffner Real Estate,LLC (florenceruffner@gmail.com)

Sold by Keller Williams Realty Metro-Londonderry

Listing Tools

Property Details

Interior Features

Exterior Features

Utilities and Appliances

Broker Reciprocity 

Copyright 2025 PrimeMLS, Inc. All rights reserved. This information is deemed reliable, but not guaranteed. The data relating to real estate displayed on this display comes in part from the IDX Program of PrimeMLS. The information being provided is for consumers’ personal, non-commercial use and may not be used for any purpose other than to identify prospective properties consumers may be interested in purchasing. Data last updated November 8, 2025 4:07 PM EST

 

Hi there! How can we help you?

Contact us using the form below or give us a call.

Send Us A Message:

I agree to receive marketing and customer service calls and text messages from Lynne Joyce. To opt out, you can reply 'stop' at any time or click the unsubscribe link in the emails. Consent is not a condition of purchase. Msg/data rates may apply. Msg frequency varies. Privacy Policy.

Do not fill in this field:

This site is protected by reCAPTCHA and the Google Privacy Policy and Terms of Service apply.

Hi there! How can we help you?

Contact us using the form below or give us a call.

Send Us A Message:

Do not fill in this field:

This site is protected by reCAPTCHA and the Google Privacy Policy and Terms of Service apply.

Hi there! How can we help you?

Contact us using the form below or give us a call.

Send Us A Message:

Do not fill in this field:

This site is protected by reCAPTCHA and the Google Privacy Policy and Terms of Service apply.

Do not fill in this field:

This site is protected by reCAPTCHA and the Google Privacy Policy and Terms of Service apply.

Do not fill in this field:

This site is protected by reCAPTCHA and the Google Privacy Policy and Terms of Service apply.

Do not fill in this field:

This site is protected by reCAPTCHA and the Google Privacy Policy and Terms of Service apply.

$

Do not fill in this field:

This site is protected by reCAPTCHA and the Google Privacy Policy and Terms of Service apply.

Map Location

ocean sunset background ocean sunset background

Map Location

Driving Directions

ocean sunset background

Do not fill in this field:

I agree to receive marketing and customer service calls and text messages from Lynne Joyce. To opt out, you can reply 'stop' at any time or click the unsubscribe link in the emails. Consent is not a condition of purchase. Msg/data rates may apply. Msg frequency varies. Privacy Policy.

This site is protected by reCAPTCHA and the Google Privacy Policy and Terms of Service apply.

Schedule A Visit

Schedule a Visit

I agree to receive marketing and customer service calls and text messages from Lynne Joyce. To opt out, you can reply 'stop' at any time or click the unsubscribe link in the emails. Consent is not a condition of purchase. Msg/data rates may apply. Msg frequency varies. Privacy Policy.

This site is protected by reCAPTCHA and the Google Privacy Policy and Terms of Service apply.