Active with Contract

Lot 6 Aisling Lane, Unit Lot 6 - The SilvertonBedford, NH 03110Price: $2,200,000

  • Price: $2,200,000
  • Est. Mortgage of $/month
  • 164 Days on Market
$
$
%
$/month over payments
Federal 30-year interest rate: 6.24% last updated on Nov 13, 2025
* All Figures are estimates. Check with your bank or proposed mortgage company for actual interest rates.
This product uses the FRED® API but is not endorsed or certified by the Federal Reserve Bank of St. Louis.
  • $2,200,000List Price
  • 4Bedrooms
  • 5Bathrooms
  • 4.8Acreage
  • 4,400Square Feet
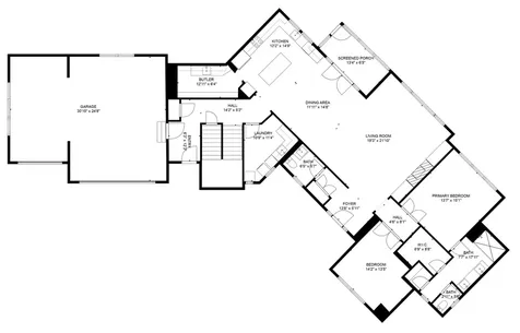
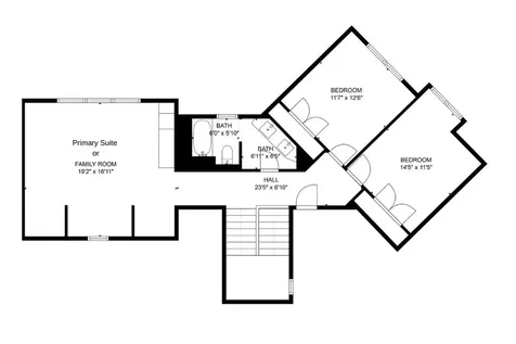
Discover luxury and privacy on nearly 5 acres at the end of a tranquil cul-de-sac with the “Silverton” Floor Plan-a distinguished 4,400 sq ft residence to be built by Graystone Builders. This exceptional home is thoughtfully designed to offer comfort, elegance, and modern living. Step inside to find a warm and welcoming ambiance enhanced by rich hardwood floors and extensive custom trim work. The heart of the home is the expansive chef's kitchen, with generous allowances for high-end finishes, complemented by a walk-in butler's pantry for added functionality. The inviting living area features a gas fireplace flanked by custom built-ins, creating the perfect space for both relaxing and entertaining. Offering flexibility and sophistication, the home includes both first and second-floor primary suites, each with luxurious, spa-like bathrooms and meticulously chosen finishes. A beautifully designed laundry room adds to the home's convenience and style. Enjoy serene views from the screened porch and large windows overlooking the spacious private yard. The finished basement includes a media room ideal for movie nights or casual gatherings. Optional Carriage House (24x24) is the perfect (upgrade) for car enthusiasts or additional storage. Still time to customize and choose your finishes w/ generous allowances. Experience upscale comfort and craftsmanship. Photos shown are of a previously built Silverton and may include upgrades. Model home available to tour.
Listed by Cheryl Zarella of Coldwell Banker Realty Bedford NH (Cell: 603-714-5647)

Listing Tools

Property Details

Interior Features

Exterior Features

Utilities and Appliances

Community

Broker Reciprocity 

Copyright 2025 PrimeMLS, Inc. All rights reserved. This information is deemed reliable, but not guaranteed. The data relating to real estate displayed on this display comes in part from the IDX Program of PrimeMLS. The information being provided is for consumers’ personal, non-commercial use and may not be used for any purpose other than to identify prospective properties consumers may be interested in purchasing. Data last updated November 14, 2025 6:38 AM EST

 

Hi there! How can we help you?

Contact us using the form below or give us a call.

Send Us A Message:

I agree to receive marketing and customer service calls and text messages from Lynne Joyce. To opt out, you can reply 'stop' at any time or click the unsubscribe link in the emails. Consent is not a condition of purchase. Msg/data rates may apply. Msg frequency varies. Privacy Policy.

Do not fill in this field:

This site is protected by reCAPTCHA and the Google Privacy Policy and Terms of Service apply.

Hi there! How can we help you?

Contact us using the form below or give us a call.

Send Us A Message:

Do not fill in this field:

This site is protected by reCAPTCHA and the Google Privacy Policy and Terms of Service apply.

Hi there! How can we help you?

Contact us using the form below or give us a call.

Send Us A Message:

Do not fill in this field:

This site is protected by reCAPTCHA and the Google Privacy Policy and Terms of Service apply.

Do not fill in this field:

This site is protected by reCAPTCHA and the Google Privacy Policy and Terms of Service apply.

Do not fill in this field:

This site is protected by reCAPTCHA and the Google Privacy Policy and Terms of Service apply.

Do not fill in this field:

This site is protected by reCAPTCHA and the Google Privacy Policy and Terms of Service apply.

$

Do not fill in this field:

This site is protected by reCAPTCHA and the Google Privacy Policy and Terms of Service apply.

Map Location

ocean sunset background ocean sunset background

Map Location

Driving Directions

ocean sunset background

Do not fill in this field:

I agree to receive marketing and customer service calls and text messages from Lynne Joyce. To opt out, you can reply 'stop' at any time or click the unsubscribe link in the emails. Consent is not a condition of purchase. Msg/data rates may apply. Msg frequency varies. Privacy Policy.

This site is protected by reCAPTCHA and the Google Privacy Policy and Terms of Service apply.

Schedule A Visit

Schedule a Visit

I agree to receive marketing and customer service calls and text messages from Lynne Joyce. To opt out, you can reply 'stop' at any time or click the unsubscribe link in the emails. Consent is not a condition of purchase. Msg/data rates may apply. Msg frequency varies. Privacy Policy.

This site is protected by reCAPTCHA and the Google Privacy Policy and Terms of Service apply.